Adresse & Objektinformationen:
- PLZ / Ort:47053 Duisburg
- Stadtteil:Hochfeld
- Straße:Wanheimer Str. 76
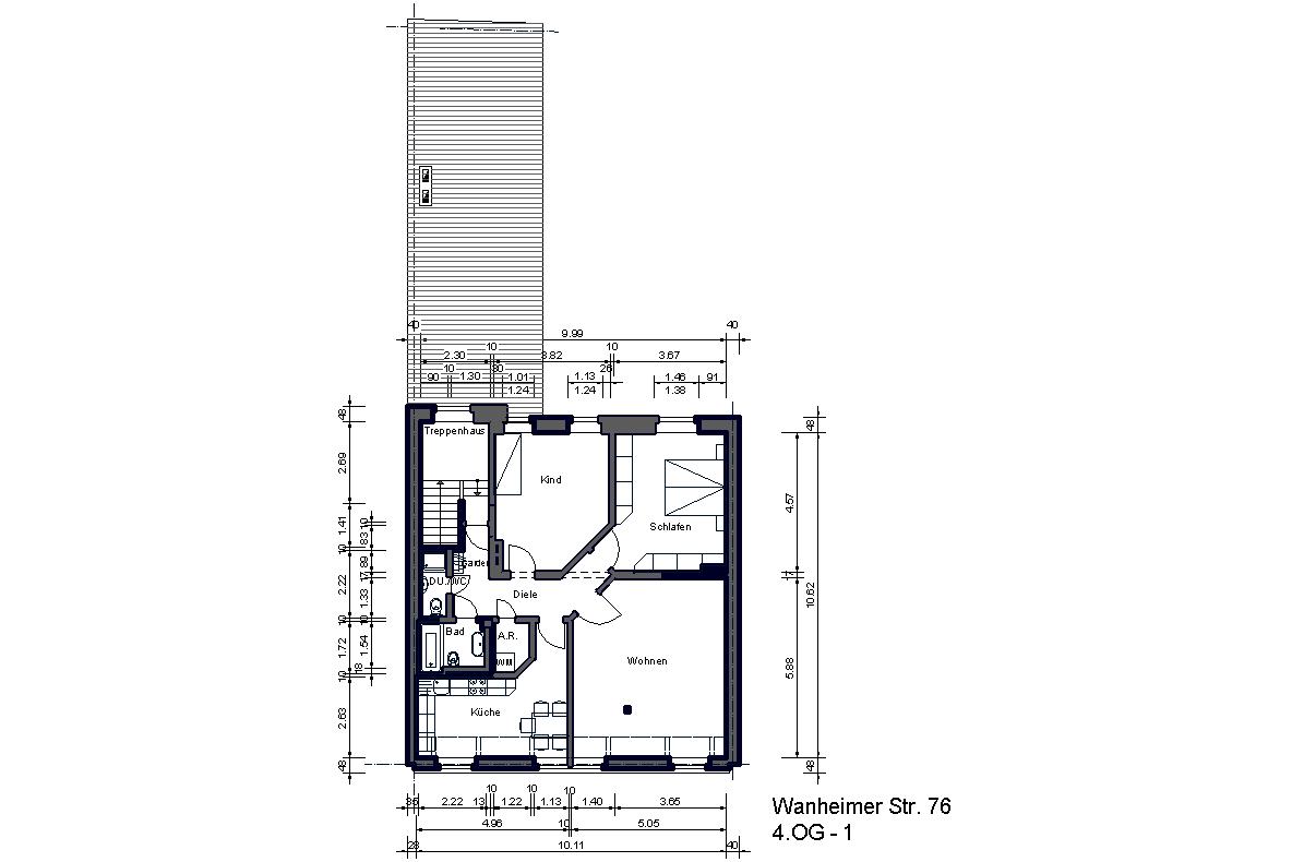
- Wohnungstyp:Dachgeschoss
- Gesamtfläche:82,84 m²
- Zimmer:3
- Etage:4
- Objektnummer:20.0413.0.0022
Kosten:
- Netto-Kaltmiete:575,00 €
- Heizkosten:93,00 €
- Betriebskosten:157,00 €
- Warmmiete:825,00 €
- Kaution:1.150,00 €
Raumgestaltung:
- 2 Schlafzimmer
- 2 Badezimmer
Bausubstanz & Energieausweis:
- Bodenbelag:Laminat
- Energieausweisart:Bedarfsausweis
- Baujahr:1900
- Heizungsart:Zentralheizung
- Energieträger:Gas
- Energieeffizienzklasse:E
- Energiezertifikat:ENEV2014
- Energiebedarf:154,50 kWh/(m²*a)
- Warmwasser:Nicht enthalten
Objektbeschreibung:
Diese gut geschnittene Dachgeschosswohnung überzeugt durch ihre helle Atmosphäre und einen charaktervollen Grundriss. Dank mehrerer Dachgauben (keine Veluxfenster) sind alle Wohnräume angenehm lichtdurchflutet und wirken offen und freundlich.
Ein echtes Highlight sind die markanten Säulen im Wohn- und Küchenbereich, die der Wohnung einen individuellen Charakter verleiht und sich hervorragend in ein modernes Wohnkonzept integrieren lässt.
Die Räume sind klar geschnitten und bieten vielfältige Einrichtungsmöglichkeiten.
Ausstattung:
- 3 Räume, Küche, Diele, 2 Bäder
- Duschbad und Wannenbad
- Dachgeschosswohnung mit Dachgauben
- Sehr helle Wohnräume
- Mindestmietzeit 2 Jahre
- Warmwasseraufbereitung über Durchlauferhitzer
Lage:
Die Wohnung befindet sich in der Wanheimer Str. 76 im Duisburger Stadtteil Hochfeld. Einkaufsmöglichkeiten des täglichen Bedarfs, Schulen, Kindergärten sowie Ärzte sind in der näheren Umgebung vorhanden. Die Anbindung an den öffentlichen Nahverkehr ist sehr gut, ebenso die Erreichbarkeit der Duisburger Innenstadt. Auch die Anbindung an die Autobahnen A40 und A59 ist schnell gegeben.
Sonstiges:
Sie möchten mehr erfahren? Zögern Sie nicht, uns zu kontaktieren – unser Team steht Ihnen gerne für einen Besichtigungstermin und alle weiteren Fragen zur Verfügung.
Die Westfalia Immobilienverwaltung GmbH ist seit vielen Jahren Ihr zuverlässiger Partner für Wohn- und Gewerbeimmobilien im Rhein-Ruhr-Kreis. Vertrauen Sie auf unsere Expertise und professionelle Vermittlung – wir stehen Ihnen jederzeit beratend zur Seite.
Bitte beachten Sie, dass die im Exposé gemachten Maßangaben geringfügig abweichen können.








