Objektinformationen:
| PLZ / Ort: | 47053 Duisburg |
|---|---|
| Straße: | Wörthstr. 171 |
| Netto-Kaltmiete: | 61.880,00 € |
| Betriebskosten: | 6.000,00 € |
| Gesamtmiete: | 67.880,00 € |
| Kaution: | 186.000,00 € |
| Nutzfläche: | 12376 m² |
|---|---|
| Gesamtfläche: | 12376 m² |
| Objektnummer: | 20.0445.3.0002 |
| Energieausweisart: | Bedarfsausweis |
| Baujahr: | 1960 |
| Erstellungsdatum: | 24.04.2015 |
| Energieträger: | Gas |
| Energiebedarf: | 259.0 kWh/(m²*a) |
| Warmwasser: | Nicht enthalten |
Ausstattung:
- Hallenboden gepflastert Rolltore vorhanden Anlieferung ebenerdig LED-Beleuchtung RWA ESFR Sprinkleranlage Nach Absprache können zusätzlich zwischen 218 m² bis max. 1.098 m² Bürofläche für 6
- 50 €/m²/Monat (netto) zzgl. MwSt. zzgl. Nebenkostenvorauszahlung angemietet werden.
Lage:
Industriegebiet Duisburg Hochfeld. Gute Anbindung an die Autobahnen A40 und A59.
Sonstiges:
Die angegebenen Mietpreise sind Basispreise, die sich je nach Ausbaustufe erhöhen können.
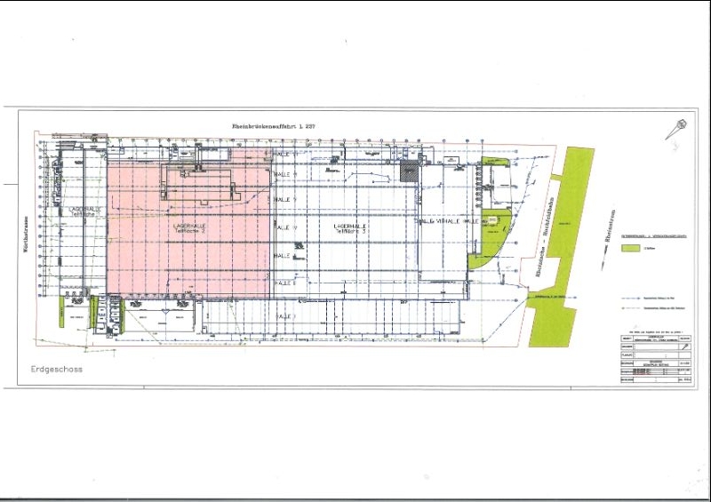
Bezüglich des Grundriss gilt: alle Maße sind am Bau zu prüfen.
Die Energiekosten für den Bezug von Strom und Gas werden vom Mieter direkt an den Versorger geleistet und sind nicht im angegebenen Gesamtmietpreis enthalten.










