Adresse & Objektinformationen:
- PLZ / Ort:47051 Duisburg
- Stadtteil:Altstadt
- Straße:Düsseldorfer Str. 23/25
- Gewerbetyp:Einzelbüro
- Gesamtfläche:263,00 m²
- Objektnummer:25.0409.1.0001
Kosten:
Bausubstanz & Energieausweis:
- Bodenbelag:Fliesen
- Energieausweisart:Bedarfsausweis
- Baujahr:1954
- Energieträger:Fernwärme
- Energiezertifikat:ENEV2014
- Energiebedarf:17,80 kWh/(m²*a)
- Warmwasser:Nicht enthalten
Objektbeschreibung:
Preis auf Anfrage!
Bei diesem Objekt handelt es sich um eine ehemalige Bankfiliale, die durch ihre hochwertige Grundstruktur, funktionale Raumaufteilung und vielseitige Nutzungsmöglichkeiten überzeugt.
Die Immobilie eignet sich ideal für Unternehmen mit Kundenverkehr, Beratungsbedarf oder erhöhten Sicherheitsanforderungen.
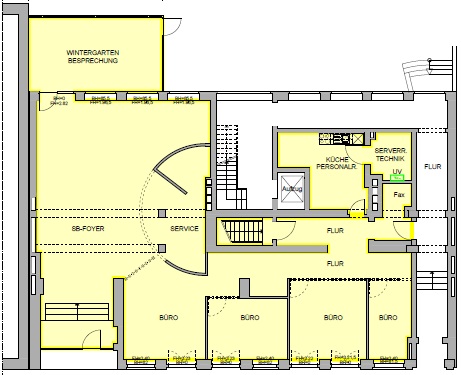
Das großzügige Foyer bildet das Herzstück der Einheit und bietet einen repräsentativen Empfangsbereich mit vielseitigen Gestaltungsmöglichkeiten.
Besonders hervorzuheben ist die Möglichkeit, diesen Bereich durch bewegliche Milchglas Elemente flexibel zu unterteilen.
Die Fläche verfügt über mehrere abgeschlossene Büroräume, die sich ideal für konzentriertes Arbeiten, Besprechungen oder individuelle Nutzungskonzepte eignen. Ergänzt wird das Raumangebot durch einen hellen Wintergarten, der sich hervorragend als Besprechungsraum oder Aufenthaltsbereich nutzen lässt und eine angenehme Arbeitsatmosphäre schafft.
Im hinteren Bereich befinden sich funktionale Nebenräume, darunter eine Küche mit Personalbereich sowie ein separater Server- bzw. Technikraum, der die Anforderungen moderner Unternehmen erfüllt.
Ein besonderes Ausstattungsmerkmal ist der im Kellergeschoss vorhandene Tresorraum, der aus der ehemaligen Nutzung als Bankfiliale stammt und sich ideal für die sichere Aufbewahrung sensibler Unterlagen, Wertgegenstände oder technischer Infrastruktur eignet.
Die Toilettenanlagen befinden sich ebenfalls im Kellergeschoss und sind gut erreichbar.
Ausstattung:
- Ehemalige Bankfiliale mit solider Bauweise
- Großzügiges, repräsentatives Foyer
- Foyer durch bewegliche Milchglaselemente flexibel abtrennbar
- Mehrere separate Büroräume
- Heller Wintergarten als Besprechungs- oder Aufenthaltsraum
- Funktionale Flurstruktur mit guter Raumerschließung
- Küche mit Personalbereich
- Separater Server- / Technikraum
- Tresorraum im Kellergeschoss
- Toilettenanlagen im Kellergeschoss
- Gute Belichtung durch große Fensterflächen
- Vielseitige Nutzungsmöglichkeiten (Büro, Praxis, Dienstleistung)
- Geeignet für Unternehmen mit Kundenverkehr
- Diskrete Beratungsbereiche realisierbar
- Preis auf Anfrage
- Bauliche Veränderung nach Absprache
Lage:
Die Immobilie befindet sich in zentraler Lage auf der Düsseldorfer Straße 23/25 in Duisburg. Die Umgebung ist geprägt von gemischter Nutzung mit Einzelhandel, Dienstleistungsunternehmen und Wohnbebauung. Durch die verkehrsgünstige Anbindung sind sowohl die Duisburger Innenstadt als auch umliegende Stadtteile schnell erreichbar. Öffentliche Verkehrsmittel befinden sich in fußläufiger Entfernung, wodurch eine gute Erreichbarkeit für Kunden und Mitarbeiter gewährleistet ist. Auch die Anbindung an das überregionale Straßennetz ist als gut zu bezeichnen. Die Lage bietet somit eine solide Kombination aus Sichtbarkeit, Erreichbarkeit und Infrastruktur – ideal für Unternehmen mit Kundenverkehr.
Sonstiges:
Sie möchten mehr erfahren? Zögern Sie nicht, uns zu kontaktieren – unser Team steht Ihnen gerne für einen Besichtigungstermin und alle weiteren Fragen zur Verfügung.
Die Westfalia Immobilienverwaltung GmbH ist seit vielen Jahren Ihr zuverlässiger Partner für Wohn- und Gewerbeimmobilien im Rhein-Ruhr-Kreis. Vertrauen Sie auf unsere Expertise und professionelle Vermittlung – wir stehen Ihnen jederzeit beratend zur Seite.
Rechtshinweis:
Bitte beachten Sie, dass die im Exposé gemachten Maßangaben geringfügig abweichen können.










