Adresse & Objektinformationen:
- PLZ / Ort:38104 Braunschweig
- Stadtteil:Östliches Ringgebiet
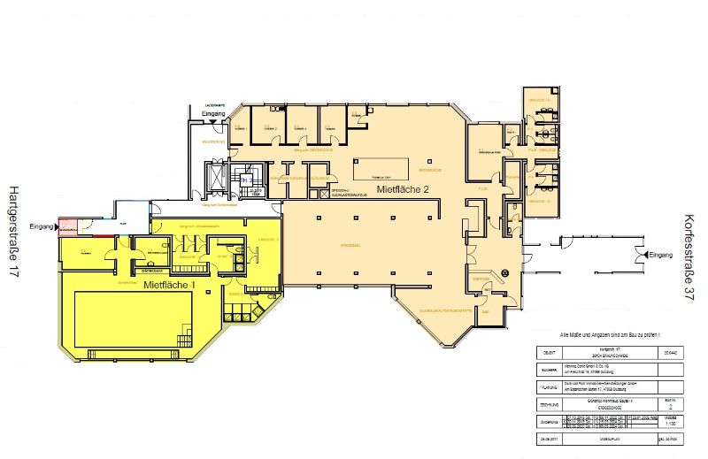
- Straße:Hartgerstr. 17
- Gewerbetyp:Praxishaus
- Gesamtfläche:944,00 m²
- Objektnummer:20.0442.1.0001
Kosten:
- Netto-Kaltmiete:11.328,00 €
- Mietpreis pro m²:12,00 €
- Heizkosten:1.300,00 €
- Betriebskosten:3.500,00 €
- Gesamtmiete:16.128,00 €
- Kaution:33.984,00 €
Raumgestaltung:
- 1 Terrasse
Bausubstanz & Energieausweis:
- Energieausweisart:Bedarfsausweis
- Baujahr:1976
- Energieträger:Fernwärme
- Energieeffizienzklasse:C
- Energiezertifikat:ENEV2014
- Energiebedarf:98,00 kWh/(m²*a)
- Warmwasser:Nicht enthalten
Objektbeschreibung:
Ihre neue Gewerbefläche befindet sich im EG eines 18 Parteien Mehrfamilienhaus im östlichen Ringgebiet. Parkplätze für Sie, Ihre Kunden sowie Mitarbeiter sind vorhanden und können auf Wunsch zusätzlich angemietet werden.
Die freien Mietflächen können ganz nach Ihren individuellen Umbauwünschen gestaltet werden. Unsere Architekten unterstützen Sie bei der Planung und Entwicklung und können Ihnen verschiedenste Ausbauvarianten anbieten.
Ausstattung:
- Individuelle Anpassung: Die Fläche kann den Bedürfnissen des Mieters angepasst werden.
- Barrierefreiheit: Der Zugang zur Gewerbefläche ist barrierefrei.
- Mietpreis: ab 12,00 €/m²/Monat zzgl. gesetzlicher MwSt. (derzeit 19 %).
- Preisgestaltung: Die angegebenen Mietpreise sind Basispreise, die sich je nach gewünschter Ausbaustufe erhöhen können.
Lage:
Die Gewerbeimmobilie in der Korfesstraße 37 liegt in einem gut angebundenen Gewerbegebiet von Braunschweig.
Öffentliche Verkehrsmittel sind in unmittelbarer Nähe verfügbar, und über die Autobahnen A39 und A2 besteht eine schnelle Anbindung an das regionale und überregionale Verkehrsnetz.
Der Hauptbahnhof sowie der Flughafen Hannover sind ebenfalls gut erreichbar.
Die Umgebung bietet ein professionelles Umfeld mit zahlreichen Gewerbe- und Dienstleistungsunternehmen – ideal für Unternehmen, die Wert auf eine verkehrsgünstige Lage legen.
Sonstiges:
Sie möchten mehr erfahren? Zögern Sie nicht, uns zu kontaktieren – unser Team steht Ihnen gerne für einen Besichtigungstermin und alle weiteren Fragen zur Verfügung.
Die Westfalia Immobilienverwaltung GmbH ist seit vielen Jahren Ihr zuverlässiger Partner für Wohn- und Gewerbeimmobilien. Vertrauen Sie auf unsere Expertise und professionelle Vermittlung – wir stehen Ihnen jederzeit beratend zur Seite.
Rechtshinweis:
Bitte beachten Sie, dass die im Exposé gemachten Maßangaben geringfügig abweichen können.




