Adresse & Objektinformationen:
- PLZ / Ort:45478 Mülheim an der Ruhr
- Stadtteil:Speldorf
- Straße:Weseler Str. 44a-46
- Gesamtfläche:1.985,00 m²
- Objektnummer:20.0440.3.0018
Kosten:
- Netto-Kaltmiete:12.100,00 €
- Heizkosten:1.500,00 €
- Betriebskosten:4.400,00 €
- Gesamtmiete:16.500,00 €
- Kaution:36.300,00 €
Bausubstanz & Energieausweis:
- Energieausweisart:Verbrauchsausweis
- Baujahr:1951
- Heizungsart:Zentralheizung
- Energieträger:Gas
- Energiezertifikat:ENEV2014
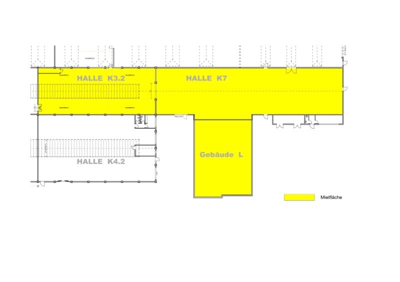
Objektbeschreibung:
Flexible Grundrissgestaltung und individuelle Ausstattung möglich.
Zwei Hallenabschnitte mit Büro- und Sozialräumen, 2 ebenerdige Rolltore, Sprinkleranlage, RWA-System.
PKW- und LKW-Stellplätze direkt am Objekt. Zusätzlich: ca. 350 m² helle, sofort bezugsfertige Büroetage sowie weitere Werk- und Lagerräume.
Top Lage mit optimaler Verkehrsanbindung für Logistik und Gewerbe.
Ausstattung:
- Zwei Hallenabschnitte mit eigenen Büro- und Sozialräumen
- Zwei ebenerdige Rolltore für optimale Logistik
- Traglast des Hallenbodens: ca. 5.000 kg/m²
- Sprinkleranlage und RWA-System vorhanden
- PKW- und LKW-Stellplätze direkt am Objekt
- Flexible Grundrissgestaltung und Ausstattung nach Wunsch
- Angrenzend: ca. 350 m² helle, sofort bezugsfertige Büroetage sowie zusätzliche Werk- und Lagerräume
- Energiekosten für Strom und Gas werden vom Mieter direkt an den Versorger gezahlt (nicht im Gesamtmietpreis enthalten)
- Mietpreise sind Basispreise, die sich je nach Ausbaustufe erhöhen können
Lage:
Die Immobilie liegt in zentraler und verkehrsgünstiger Lage im Hafengebiet von Mülheim an der Ruhr, einem etablierten Gewerbestandort mit optimaler Anbindung an die regionale und überregionale Infrastruktur.
Die Auffahrten zur A3 und A40 am Kreuz Kaiserberg sind in wenigen Minuten erreichbar und ermöglichen schnelle Verbindungen in das gesamte Ruhrgebiet sowie in Richtung Düsseldorf, Köln und Rheinland.
Durch die Nähe zum Hafen Mülheim bestehen ideale Voraussetzungen für Warenumschlag und Transport. Zudem ist der Standort gut an den öffentlichen Nahverkehr angebunden, was die Erreichbarkeit für Mitarbeiter erleichtert.
In unmittelbarer Umgebung befinden sich Dienstleister, Gastronomie und Versorgungseinrichtungen, sodass die Lage sowohl für Logistik als auch für Produktion und Gewerbe besonders attraktiv ist.
Sonstiges:
Sie möchten mehr erfahren? Zögern Sie nicht, uns zu kontaktieren – unser Team steht Ihnen gerne für einen Besichtigungstermin und alle weiteren Fragen zur Verfügung.
Die Westfalia Immobilienverwaltung GmbH ist seit vielen Jahren Ihr zuverlässiger Partner für Wohn- und Gewerbeimmobilien im Rhein-Ruhr-Kreis. Vertrauen Sie auf unsere Expertise und professionelle Vermittlung – wir stehen Ihnen jederzeit beratend zur Seite.
Rechtshinweis: Bitte beachten Sie, dass die im Exposé gemachten Maßangaben abweichen können.







